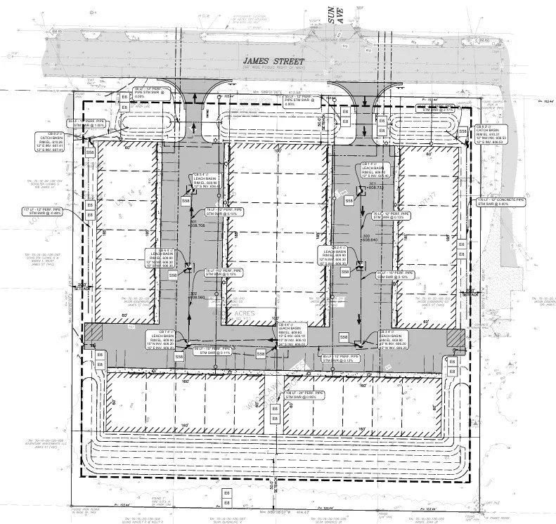
James Street Storage Condos - Holland, MI
34 Storage Condos for seasonal/year-round storage or small business ventures.
34 Storage Condos for seasonal/year-round storage or small business ventures.